在中国古代,文人对于理想世界的想象一直是通过多种艺术手段进行连续的刻画和探索,从文学到山水画再到园林,从文字到图像再到建筑空间。人与自然的关系,是中国传统哲学中比重极大的观念。这些观念的影响之大,一直潜藏在我们的血液之中,以至于我们对山、石、林、泉有着西方文化不曾具备的与生俱来的感受力和鉴别力。



2018年,终于有机会将这个原型研究的一部分进行了实际的建造,基地位于贵阳一个山涧之谷中,背靠山坡,面向一条溪涧。在整个山涧房的构思过程中,除了如何“拟山”这个形式问题之外,建筑形式承载了什么样子的意义空间是思考的重点。在一个类似于山体的非规则形态中,如何组织空间,功能和流线并非是重点,而是建筑“拟山”,人居于“洞”中的场景塑造是研究的基本构想。混凝土框架结构是最适合在地营造的建造体系,以至于形成高低错落的体量关系,是原型研究中的逻辑和结果。


自河对岸远望,前山后山形成“深远”之势,自内庭仰看后山,如“高远”而望,气势突兀,山势逼人。对山而望,三个人造山同背后自然远山层峦叠嶂,以崇山复岭,密树深溪的景象形成“平远”之意。山涧之间,遥望一间木屋,屋下仿佛有瀑布跌入溪涧,是画意中点睛之笔。


山可游而洞可居,山形构成之后,山之空处是安放身体的庇护空间。意为“居于洞穴”,洞穴之中,用瓦片来产生居所的暗示。为了让此意变得妙趣,在侧山的雅集之处将瓦片内外反置,将树影投于吊顶,产生一种内外置换的布景。恍惚中,内与外身不知何处。


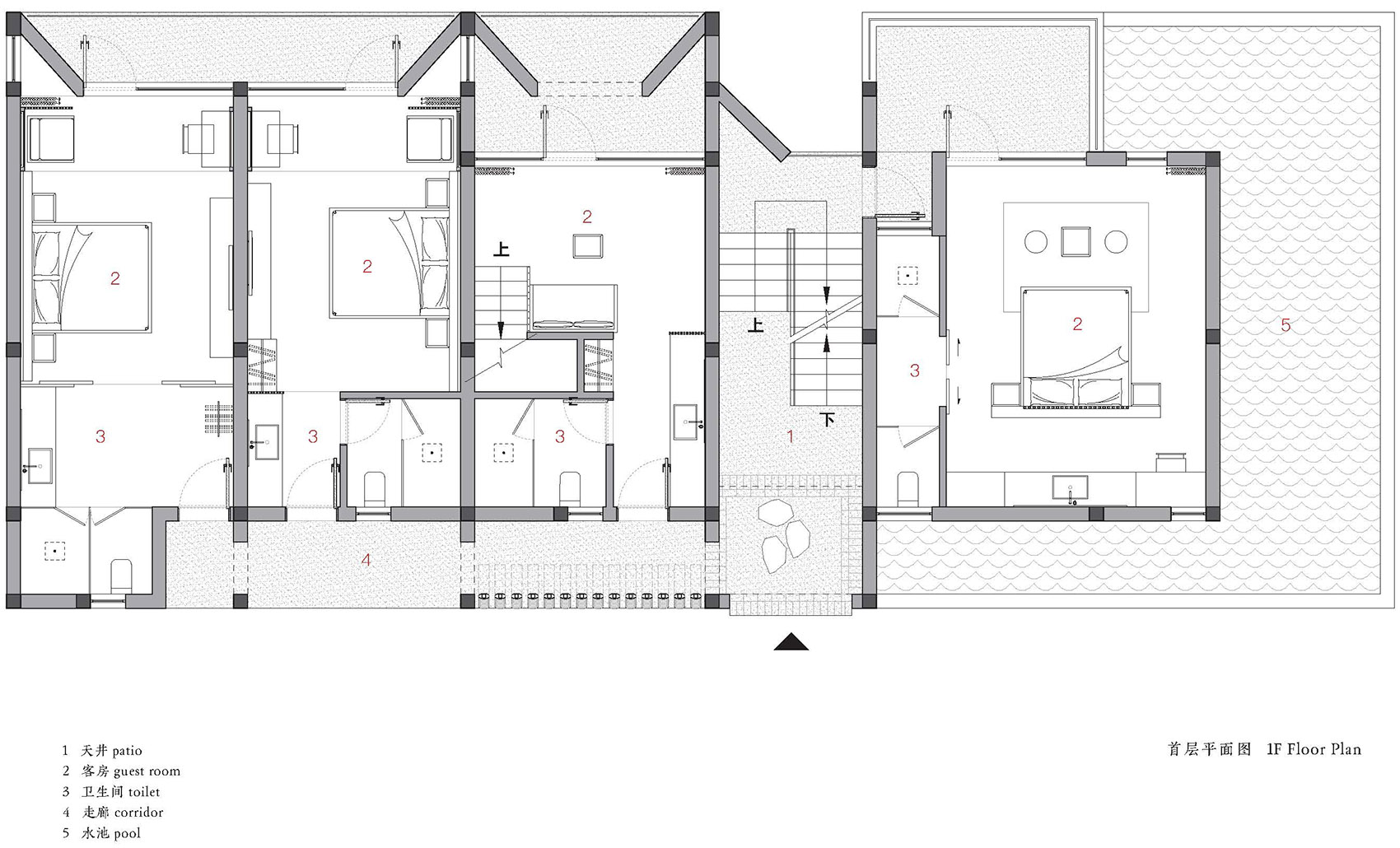
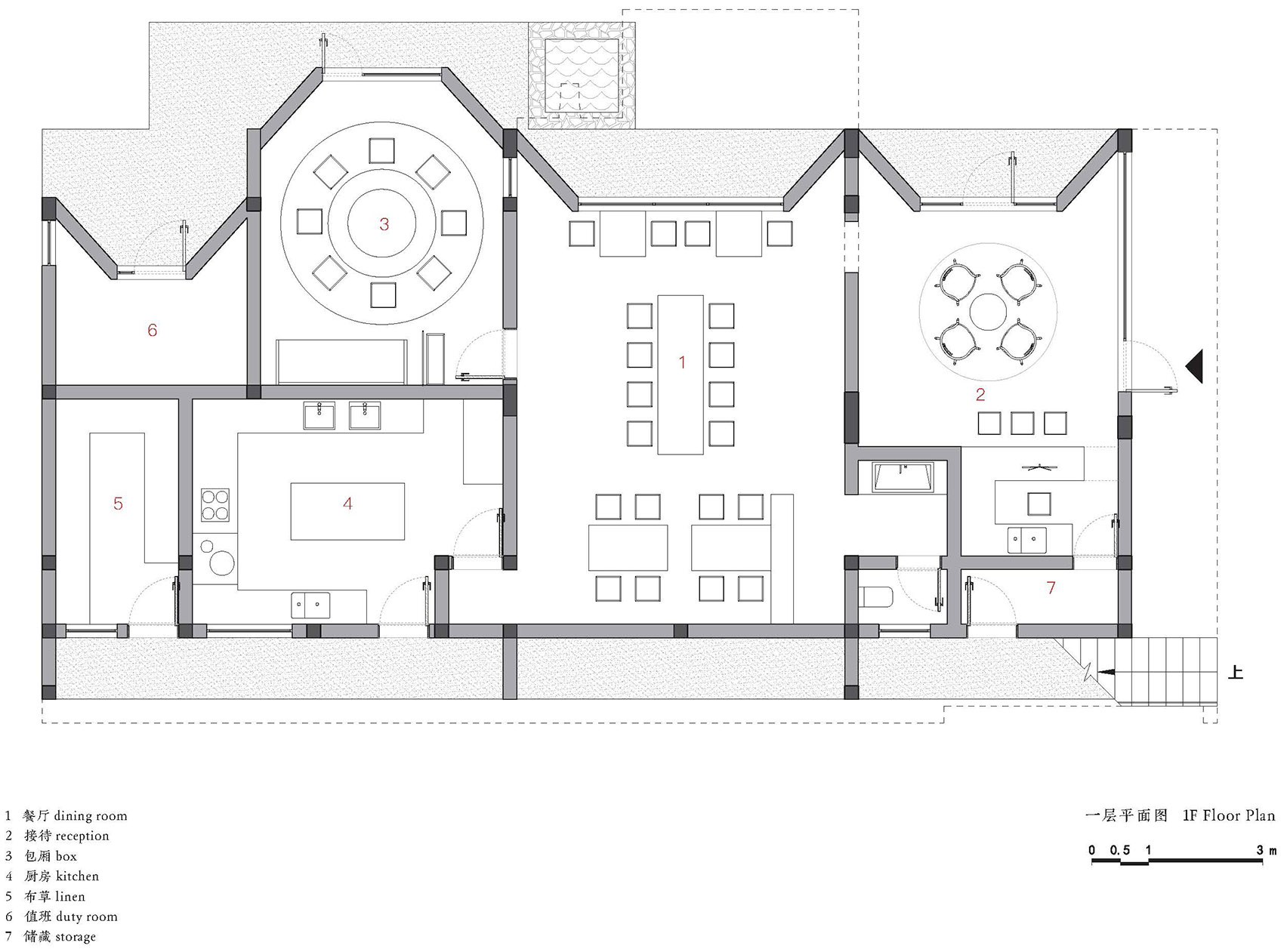
在实际民宿酒店项目的落地过程中,由具体的使用需求,场地中形成了三栋建筑单体,同时也是三个不同姿态的“山”。因场地红线的限制,呈三角形布局。前山平缓,横向舒展。后山高耸,扑面而来。侧山则卧于一侧。角落一圆形“月塘”,成为实际功能中的泳池。


▼酒店外立面












▼客房浴室



▼酒店夜景

▼院内小景

▼酒店户外水池

民宿酒店已然建成数年,对于自然之物本身的模拟和转译是建筑师形式操作的最直接操作,但同时不免过于形式主义,除了单纯的形式表现,酒店建筑需要承载更加丰厚的艺术修养,才是内秀的建筑艺术。克制的形式,肆意的情绪是更加充沛的建筑表现。但至少,从形式出发,是建筑师的起点。









185-77359605
















