昆明度假酒店依山间溪流展开,相传立村于清朝康熙年间。小乡村在此默默延续了几百年,直至原住民背井离乡,留下村落在山中渐渐衰败。2019年,昆明市在此试点乡村振兴,引入民宿酒店品牌想将破败的村落盘活为高端酒店。我们受此委托,怀着对原始场地的尊重,希望保留百年间人与自然互动的空间记忆,用尽量少的设计手法和材料介入让场地本身的气质自然显露,给逃离喧嚣的人们制造质朴而舒适的休憩空间。
▼台阶式的下沉庭院

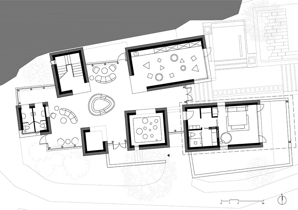
山地的西南角错落地分布着四个由毛石堆砌而成的杂物房。这四个方形体块之间所形成的空间关系是村民生活和自然山体不断对话的结果。我们对这几个早已破败的杂物房进行了原址修复,在顶面和墙面采用玻璃封闭空间以形成日光中庭,最大程度保留原始的场地肌理的同时强调了建筑的体积感。传统定义的内立面外立面在此不复存在,中庭空间所拥有的是户外的场所感。同时,玻璃的工业感则突出了毛石的质朴粗矿和蕴藏其间石匠工人的传统手艺。


▼保留原始的场地肌理的同时强调了建筑的体积感

酒店露台每个体块在角部打开,通过耐候钢板和黑色钢板的组合将开口凸显。接待、儿童活动室、泡泡池、楼梯等功能由此融入整个中庭。建筑体块的独立性和内部空间的完整性这对矛盾在此得到了完美的解决。场地中央原本留存的坑洞被改造成台阶式的下沉庭院,为中庭增添灵动的同时形成向心性。体块之间自然围合出稳定的区域,外部景观则透过玻璃蔓延进来,此间设置沙发,供茶歇休憩。修缮后的石头盒子将一直默默承载着村落的记忆,与在内嬉戏玩耍的孩子们一起,将时间延续。

▼保留老院落的原始肌理及空间关系

▼露台的灰空间增加了层次感,提供了亲近自然的可能性

▼毛石墙见证了新与旧的传承

人们逃离出都市的钢筋水泥,只为在不经修饰的景观中感受原始的自然。所蕴含的自然之美和村落原生态形成的院落空间是我们要引入整个居住体验的核心。在保留原有毛石立面的基础上,我们引入钢结构体系为大面开窗提供可能,以此打破内外的边界,最大程度地将自然置入空间,将空间融入自然。
▼大面开窗打破内外的边界

由两侧的实墙限定出视觉通道,将面向山景的景观面完全打开,酒店客房也面向景观面设置,让人在苏醒的第一时间感受自然,与晨光薄暮融为一体。L形的连续玻璃界面让山景完全侵入空间,给人以在自然中入睡的错觉。露台的灰空间增加了层次感的同时提供了进一步亲近自然的可能性。

由原始建筑肌理围合而成的院落空间经过梳理后成为内向的空间核心。各个酒店房间均部分向院落打开,其中公共客厅的移门扇可完全开启。此时,内外已没有边界,合为整体。我们希望保留院落内原有的老榆树和建筑的共生关系,因此将客房平面围绕此树展开。卧室、起居卫生间形成C型将老树包裹其间。傍晚在起居室饮茶片刻,看树影横斜。
▼酒店休息区

▼酒店餐厅


纯粹的几何形体去除刻意的装饰和造型,使空间回归本源,为从城市的嘈杂中脱身的人们带来片刻宁静。

我们保留老院落的原始肌理及空间关系,强化景观的导入和内院的核心性。以此为基础进行适当扩建,将客房及公共活动的功能以组团方式置入。那些保留的毛石墙和重建的毛石墙见证了新与旧的传承。平面组织和功能排布依据每个院子各异的地形高差、方位朝向及最为重要的原始肌理而定制。人们在此不仅体验高品质的度假感受,更能和传统相通。
▼各个房间均部分向院落打开



村落的民居院落多分布在山坡陡地,以L型院与三合院为主。原住民早已搬离而房屋则呈衰败之势。但即使残破,院落和自然山体所呈现的高度融合依旧保存着曾经的生活记忆。我们的客房即从这些原始院落脱胎而来。






185-77359605
















