陈家铺村依山而建,沿山体梯田阶梯式分布,上下落差高达200余米,整体呈现出典型浙西南崖居聚落形态。近百幢民居多为夯土木构建筑,保留了完整的村落空间肌理和环境风貌。



时过境迁,初次来到这里,正值收获的季节,阳光洒在这个悬崖上的村子,夯土墙愈发的亮眼,家家户户在门前晒着自家的番薯干,满目的金黄。

对位于村落西南侧的两栋传统民居进行改造。两栋民居是典型的浙南山地民居,三面夯土围合,一面紧靠毛石挡土墙,内部屋架为传统木结构。机动车辆到达村口便无法前行,步行约三百多米可抵达项目场地,但是村道蜿蜒曲折,石阶上下崎岖,路面最窄之处仅供一人通行。

由于陈家铺村是松阳县的历史风貌保护村落之一,松阳政府对于传统历史保护村落的风貌控制有着非常严格的条例要求。然而项目业主希望改造后的空间兼具体验感和舒适性,能回应外部无敌的风景。

设计之初就制定了两种策略来回应上诉两个看似存在矛盾的诉求。在整个设计建造过程中,始终遵循两条平行的路径:一是对松阳民居聚落的乡土建构体系展开研究,梳理与当地自然资源、气候环境、复杂地形、生产与生活方式及文化特征相适应的空间型制和稳定的建造特征,为保护传统聚落风貌提供设计依据;二是运用轻钢结构体系和装配式建造技术,植入新的建筑使用功能,适应严苛的现场作业环境,满足紧迫的施工建造周期,同时提供较好的建筑物理性能。


当地乡土民居建构研究
设计从调研测绘开始,梳理了当地乡土民居聚落的建构体系,分析其组成脉络、特征与现实应用的可能性。调研内容包括材料配比、建造技术、场地营造与环境气候适应等方面。

团队不仅了走访当地传统工匠,收集工法口诀,感知材料特性,学习传统建造过程。同时,还向现代夯土技术专业人士咨询,调整材料配比,优化材料性能和技术工艺,学习夯土修复技术。


结构形式选择
项目地处偏远山区,交通运输不便,大型建筑机器无法进入,对于传统民居的现代空间改造提出了更高的要求。为了应对严峻的施工环境,设计首先从结构形式入手,综合各种因素,决定采用新型轻钢装配式结构体系。




最终,在前期调研测绘的基础之上,团队对当地带有地域特征的构架、屋面、墙体、门窗、构造细部等建筑元素和材料进行整理分类,建立当地材料与工法谱系,其成果能够作为之后改造更新设计的参照基础。

民居外围护结构修复工艺
土墙保护修缮
为了最大程度保留原有墙体,土墙与新建结构脱离,避免土墙承重;二层由于室内高度增加,屋面整体抬升,檐口以下新建外墙以幕墙形式外挂,受力于主体钢结构。当地农民施工队运用传统手工技艺修复还原土墙,室内墙面喷涂保护层。原有外墙的入口门洞以及石头门套完整保留。

结构梁柱为截面尺寸200*90mm的基本单元杆件,由两根壁厚2.5mm的C型钢合抱弦扣而成,冷轧成型。杆件之间螺栓连接,无需焊接。最小化的结构单元,能够解决运输难题;高度的预制率和连接方式,便于现场施工安装。

空间改造
两栋民居夯土墙体保存较为完好,设计将其整体保留,原有建筑内部空间格局狭小,木屋架也已年久失修,拆除后,植入新型轻钢结构,并将新结构与保留的夯土墙体相互脱离,避免土墙承受新建筑的受力荷载。

楼屋面及室内隔墙
改造方案采取建筑-室内一体化设计施工,因此室内隔墙、楼梯、管线预埋等均可以在工厂预先加工完成,现场装配组装,保证施工精度。室内墙体以C型轻钢作为龙骨,金属网板支模,内部填充EPS发泡混凝土。自重轻,保温隔音效果好,施工便捷。

基础地坪
复核原建筑基础尺寸,保证新建结构在原址范围内,确保基础土层稳固。采用平板基础,柱脚范围结构加强。基础与土墙预留安全距离,保证土墙的安全稳固和施工操作空间。预埋综合管线,铺设地暖。


主体结构
结构单元杆件工厂预制加工完成,整体打包运输至项目现场。工人根据预先精确加工的螺栓孔定位,现场拼装结构单元杆件,最快一天即可完成主体结构部分。


毛石挡墙围护
村庄内乡土民居顺应地形地貌,依山而建,多数房屋背靠山体的一侧,围护外墙直接采用毛石砌筑的护坡挡墙。设计中希望保留这一表达地域建造特点的构造。首先要对存在结构隐患的石墙修缮加固,确保结构稳定性;山地土层含水量高,石墙会出现渗水现象,在基础施工阶段,预埋排水管起到引流作用。石墙内部灌浆处理,填补缝隙,刷防水涂层,营造舒适的室内居住环境。

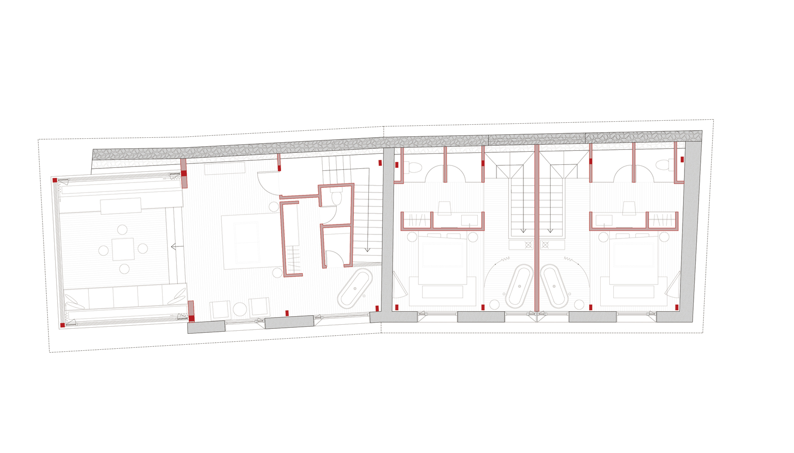
1号楼位于村落尽端,私密性较高。建筑西侧正对峡谷,景观视野绝佳。因此设计为上下两间的平层客房,西侧均以通透的落地玻璃为主,共享景观资源。而作为主要立面的南面,仍然保留原始夯土墙面,融于传统风貌。一二层空间共用入户玄关,交通空间紧贴建筑山墙一侧。



2号楼南侧紧靠道路,考虑到居住空间的私密性,将客房设计为LOFT空间,底层为起居厅,靠窗设置景观卧榻。二层为卧室,床和浴缸皆面向外部风景。

门窗系统更新
传统民居的开窗洞口较小,无法满足客房室内空间对于光照、通风和景观收纳等方面的需求。为了改善建筑内部的光照环境和景观视野,设计中对原有门窗洞口进行了扩大处理,安装现代门窗系统。确保外围护结构的密闭性,增强保温隔热性能。特殊设计的铝板穿孔窗框,既能提供室内通风,又保证了外立面简洁统一。



原有老建筑的层高低矮逼仄,无法满足现代居住空间的需求。因此我们将原有建筑屋面整体抬高,高度合理分配至上下两层,为室内设备安装预留空间,同时创造舒适的居住体验。1号楼的最西侧,原有砖砌柴房已坍塌破损,荒草丛生。我们依照原有宅基地范围修建,并且在二层悬挑一个玻璃体量,既可以作为室内空间的延伸,又能更好地收纳峡谷景观。






装配建造过程
清拆保护
首先,对原有夯土农居做建筑质量评定,存在安全隐患的部分予以拆除。建筑质量较好的保留并修缮加固,回收利用拆除下来的木材、青瓦、砖石等材料。







185-77359605
















