“我们的设计主旨是营造一个放松、舒适、亲近自然的建筑及室内环境,同时成为人与自然互动的媒介,帮助患有认知障碍的老人们以独特的视角感受和体验农场的环境和氛围。”
“我们认为这次项目不仅仅是为阿尔茨海默病患者创造一个舒适且可以展现节目效果的空间,而是抱着更多的社会责任感来进行此次的设计。希望他们在一些零零散散的记忆碎片中找到家的感觉,重拾人生,也希望通过节目和此次的设计让更多的人来关注我们身边的弱势群体。”
▼农场餐厅夜景

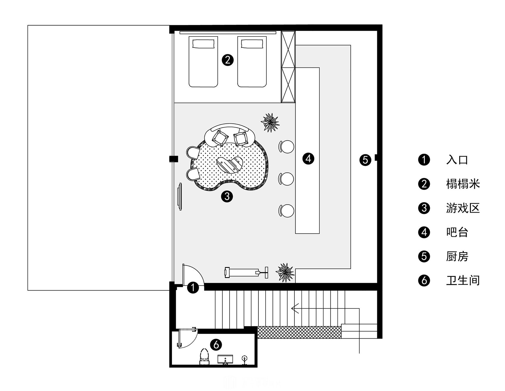
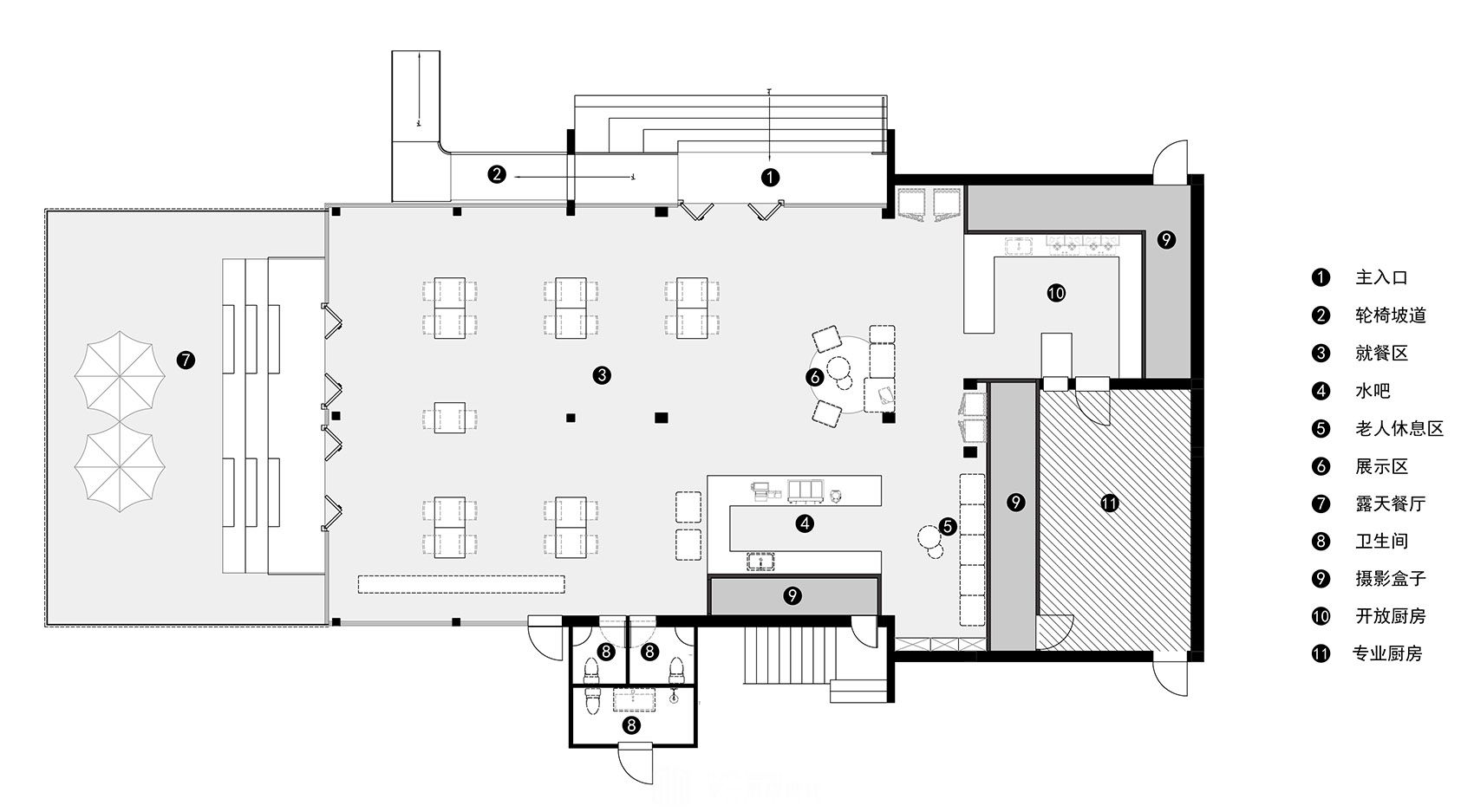
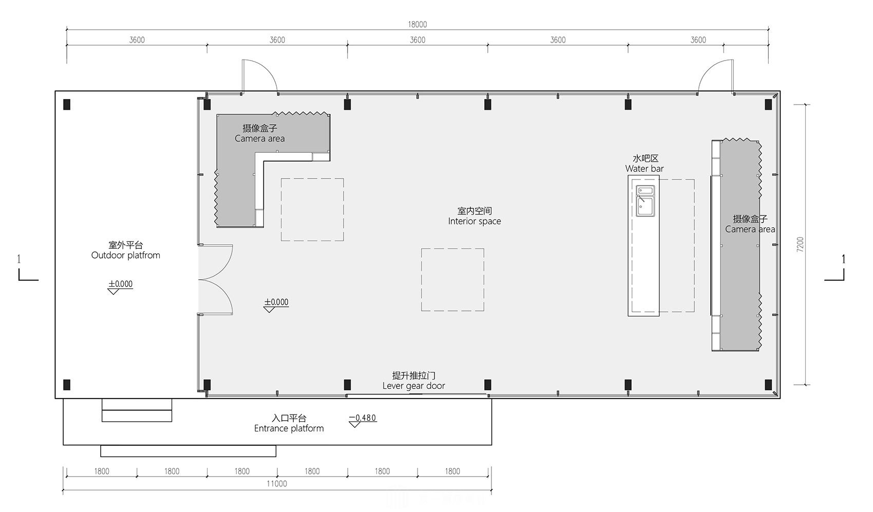
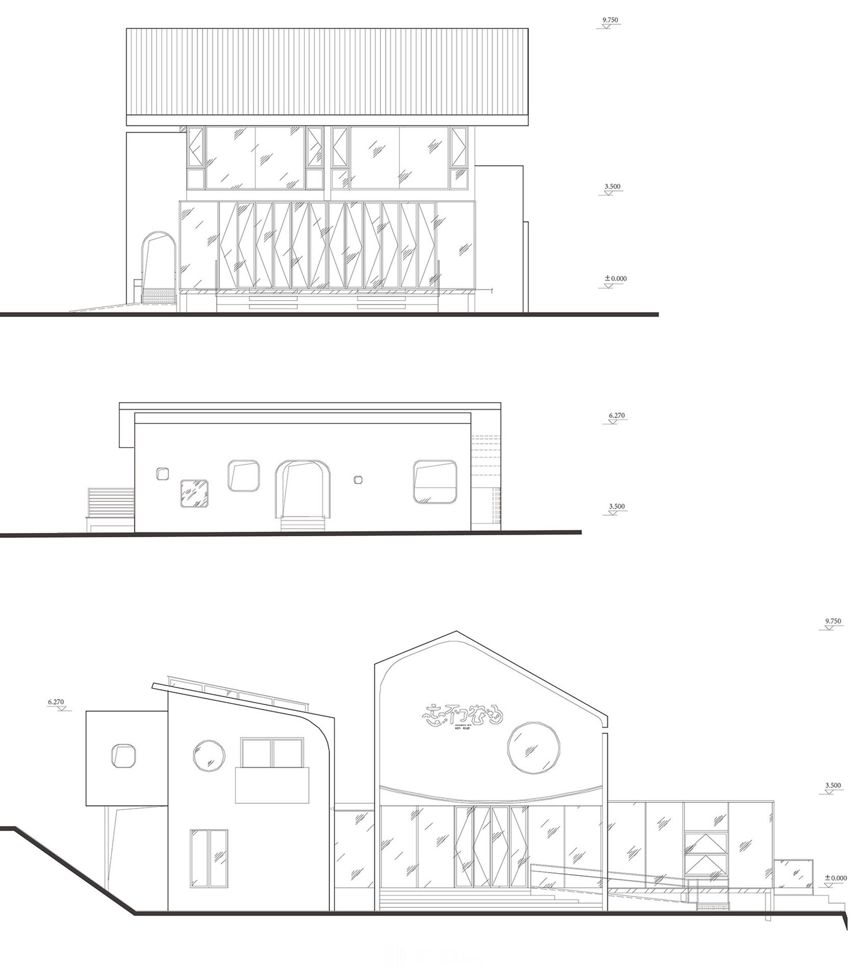
本次项目位于成都都江堰市,选择了一个非常原生态的自然环境,场地具有单纯、质朴的初印象。该项目分为整体功能规划、餐厅改造设计和悠哉悠哉屋(家族大客厅)新建三个部分。区别于以往的设计项目,本项目要同时考虑节目录制和后期运营的不同需求。

▼山谷里的餐厅

整个设计过程中参与度较高,呈现方式到最后的每种材料的选择,这样保证了餐厅项目的设计和落地实施都非常高效。场地生态环境非常好,高大且自由生长的树木、大片的草坪、充满意境的荷花池塘等。我们的改造策略是把老建筑处理的尽可能的简单,去掉多余的装饰与符号,从实用功能出发。





































185-77359605













