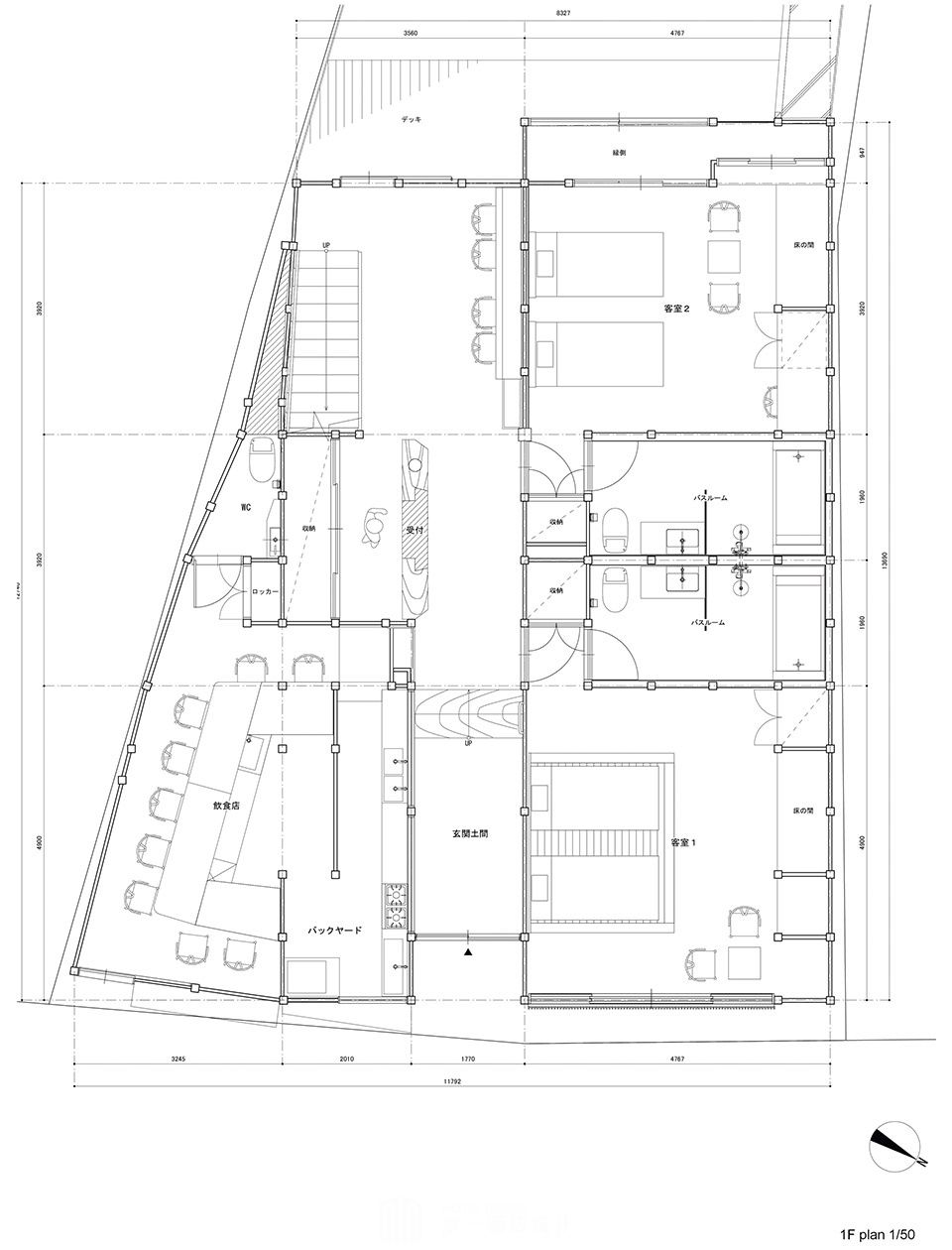
一栋具有80年历史的日式传统民居。项目所在的街道由明知光秀建造,具有鲜明的日式城下町氛围。业主以及其家人从小时侯起就居住在这里,也见证了近年来该地区空置房屋数量的增加。目前,业主在本项目附近经营一家餐馆,他不希望远道而来的客人唯一的住宿选择只有商务酒店。







▼客房


▼庭院

▼由中庭看庭院














民宿|酒店|餐饮设计引导者!
185-77359605
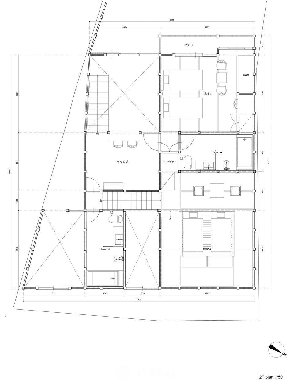
一栋具有80年历史的日式传统民居。项目所在的街道由明知光秀建造,具有鲜明的日式城下町氛围。业主以及其家人从小时侯起就居住在这里,也见证了近年来该地区空置房屋数量的增加。目前,业主在本项目附近经营一家餐馆,他不希望远道而来的客人唯一的住宿选择只有商务酒店。







▼客房


▼庭院

▼由中庭看庭院













