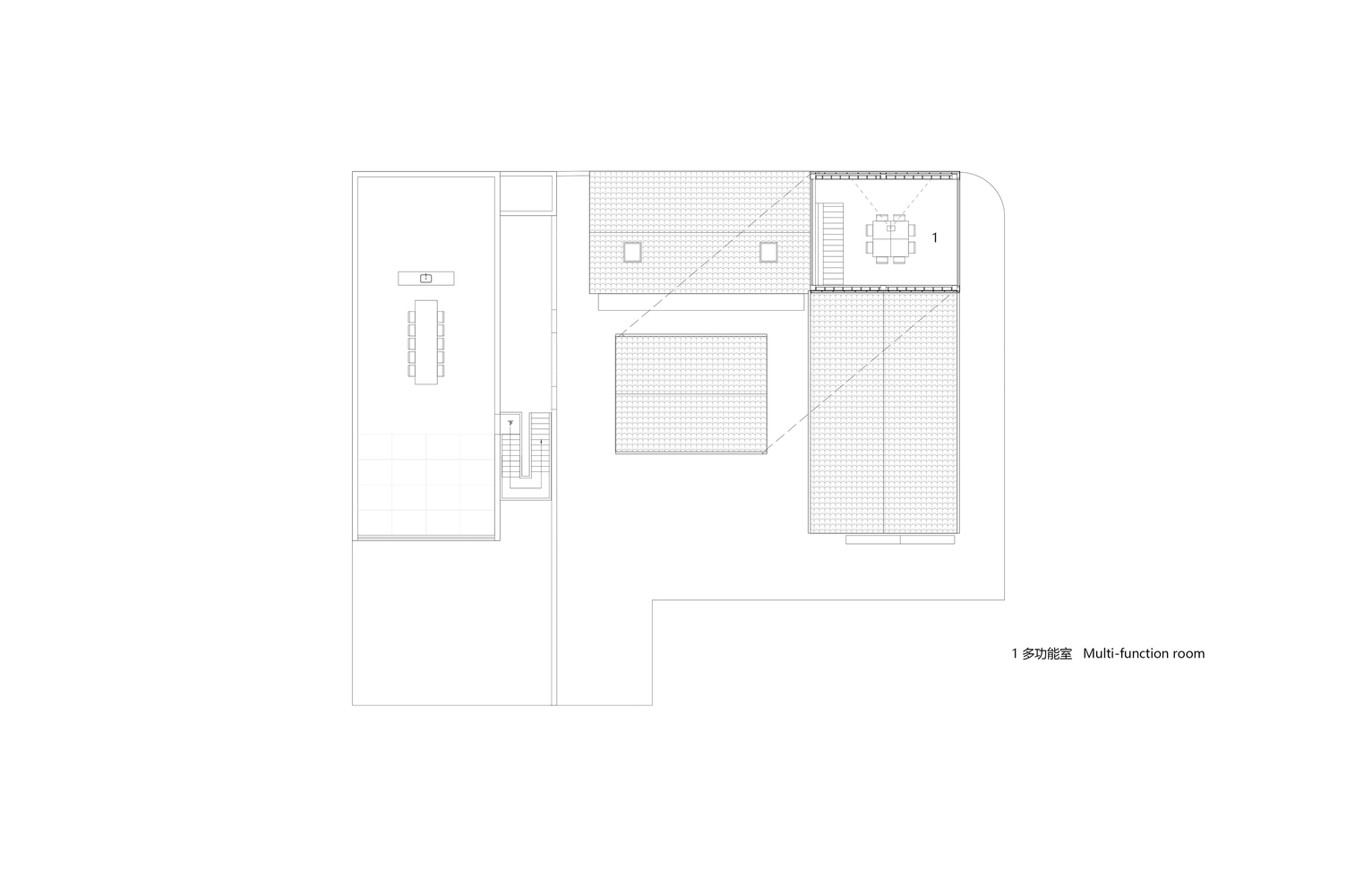
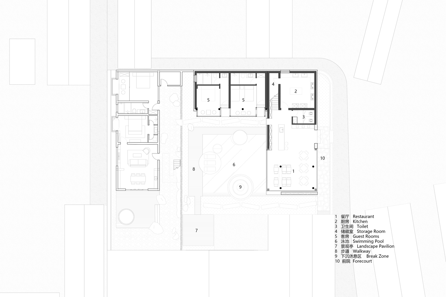
京一酒店设计事务所,专注酒店民宿设计,国风民宿设计,餐饮空间设计,商业空间设计,娱乐空间设计,民宿设计,酒店设计,建筑设计,室内设计,文旅设计,文旅规划类项目,擅长发掘商业价值,定位商业市场,秉承...▼3d模型图▼民宿夜景▼泳池▼鸟瞰▼餐厅▼接待厅